(1).png)
Thông tin dự án
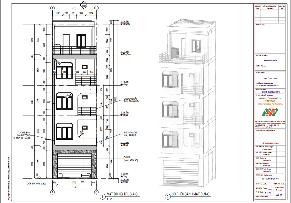
Tên công trình: Thiết kế nhà phố Thạch Bàn - Long Biên
Chủ đầu tư: Anh Biên
Địa điểm: Thạch Bàn - Long Biên - Hà Nội
Năm thực hiện: 2024

*Thiết kế kiến trúc
*Bản vẽ kết cấu được thể hiện bằng 3D view
*Bản vẽ điện nước được thể hiện bằng 3D view sinh động trực quan
