.png)
Thông tin dự án
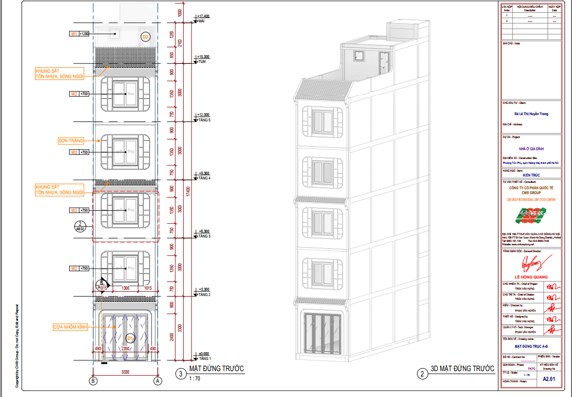
Tên công trình: Thiết kế nhà phố Mr. Vương
Chủ đầu tư: Anh chị Trang Vương
Địa điểm: Hoàng Mai - Hà Nội
Năm thực hiện: 2025
.png)
Tên công trình: Thiết kế nhà phố Mr. Vương
Chủ đầu tư: Anh chị Trang Vương
Địa điểm: Hoàng Mai - Hà Nội
Năm thực hiện: 2025