.png)
Thông tin dự án
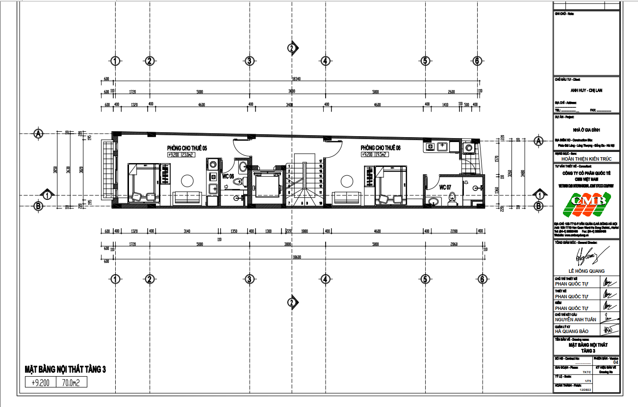
Tên công trình: Thiết kế chung cư mini 75 Pháo Đài Láng
Chủ đầu tư: Anh Huy
Địa điểm: Đống Đa Hà Nội
Năm thực hiện: 2023
.png)
Tên công trình: Thiết kế chung cư mini 75 Pháo Đài Láng
Chủ đầu tư: Anh Huy
Địa điểm: Đống Đa Hà Nội
Năm thực hiện: 2023